108 George Street Brockville, Ontario K6V 3V9
$339,900
Welcome to 108 George Street in Brockville, an updated and well-appointed 3-bedroom, 2-bath home offering a functional layout and modern finishes in a convenient central location. Ideal for first-time buyers, downsizers, or investors, this property provides a strong balance of comfort, flexibility, and long-term value. The main floor features a bright, open-concept living and dining area with updated flooring and neutral finishes throughout, creating a clean and inviting space that is easy to personalize. The kitchen has been tastefully renovated with white cabinetry, wood countertops, a modern backsplash, and new stainless steel appliances, offering both style and practicality for everyday use. The main floor bedroom and full bathroom provide flexibility for single-level living, guest accommodations, or a home office. The upper level includes two additional bedrooms and a second bathroom, allowing for a clear separation between living and sleeping areas. Extensive updates completed in 2025 provide added confidence and peace of mind, including improvements to the electrical system, new flooring throughout, fully updated bathrooms, new cabinetry, fresh paint, upgraded wall fixtures, new appliances, and a new gas furnace. The exterior offers a fully fenced yard, a deck suitable for outdoor entertaining, and a storage shed for added convenience. Side access provides practical parking options, enhancing the overall functionality of the property. Situated close to downtown Brockville, the waterfront, schools, parks, and local amenities, this home delivers both accessibility and lifestyle appeal. Move-in ready and thoughtfully updated, 108 George Street presents an excellent opportunity to enter the market or add a reliable property to your portfolio. (id:28469)
Open House
This property has open houses!
9:00 am
Ends at:10:00 am
Property Details
| MLS® Number | X12942552 |
| Property Type | Single Family |
| Community Name | 810 - Brockville |
| Amenities Near By | Public Transit |
| Features | Carpet Free |
| Parking Space Total | 2 |
| Structure | Shed |
Building
| Bathroom Total | 2 |
| Bedrooms Above Ground | 3 |
| Bedrooms Total | 3 |
| Appliances | Water Heater, Dishwasher, Stove, Refrigerator |
| Basement Development | Unfinished |
| Basement Type | N/a (unfinished) |
| Construction Style Attachment | Detached |
| Cooling Type | None |
| Exterior Finish | Aluminum Siding |
| Foundation Type | Stone |
| Heating Fuel | Natural Gas |
| Heating Type | Forced Air |
| Stories Total | 2 |
| Size Interior | 1,100 - 1,500 Sqft |
| Type | House |
| Utility Water | Municipal Water |
Parking
| No Garage |
Land
| Acreage | No |
| Fence Type | Fenced Yard |
| Land Amenities | Public Transit |
| Sewer | Sanitary Sewer |
| Size Depth | 79 Ft ,2 In |
| Size Frontage | 30 Ft ,6 In |
| Size Irregular | 30.5 X 79.2 Ft |
| Size Total Text | 30.5 X 79.2 Ft |
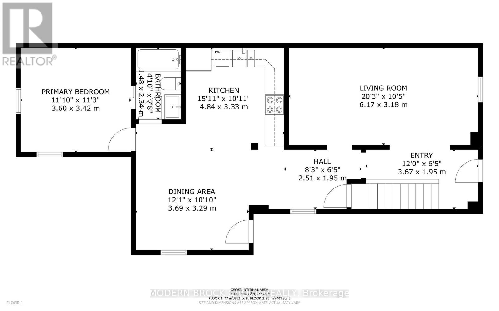
Rooms
| Level | Type | Length | Width | Dimensions |
|---|---|---|---|---|
| Main Level | Foyer | 3.67 m | 1.95 m | 3.67 m x 1.95 m |
| Main Level | Living Room | 6.17 m | 3.18 m | 6.17 m x 3.18 m |
| Main Level | Kitchen | 4.84 m | 3.33 m | 4.84 m x 3.33 m |
| Main Level | Dining Room | 3.69 m | 3.29 m | 3.69 m x 3.29 m |
| Main Level | Primary Bedroom | 3.6 m | 3.42 m | 3.6 m x 3.42 m |
| Main Level | Bathroom | 1.48 m | 2.34 m | 1.48 m x 2.34 m |
| Upper Level | Bedroom 2 | 2.45 m | 5.28 m | 2.45 m x 5.28 m |
| Upper Level | Bedroom 3 | 3.76 m | 3.18 m | 3.76 m x 3.18 m |
| Upper Level | Bathroom | 1.98 m | 1.95 m | 1.98 m x 1.95 m |
Contact Us
Contact us for more information
Orlando Spicer
Broker
www.youtube.com/embed/LoacQWIYDU8
www.youtube.com/embed/OK4GDqOEv9g
37 Temperance Road
Athens, Ontario K0E 1B0
(613) 802-7917









































