64-66 Lennox Street Cornwall, Ontario K6H 1H3

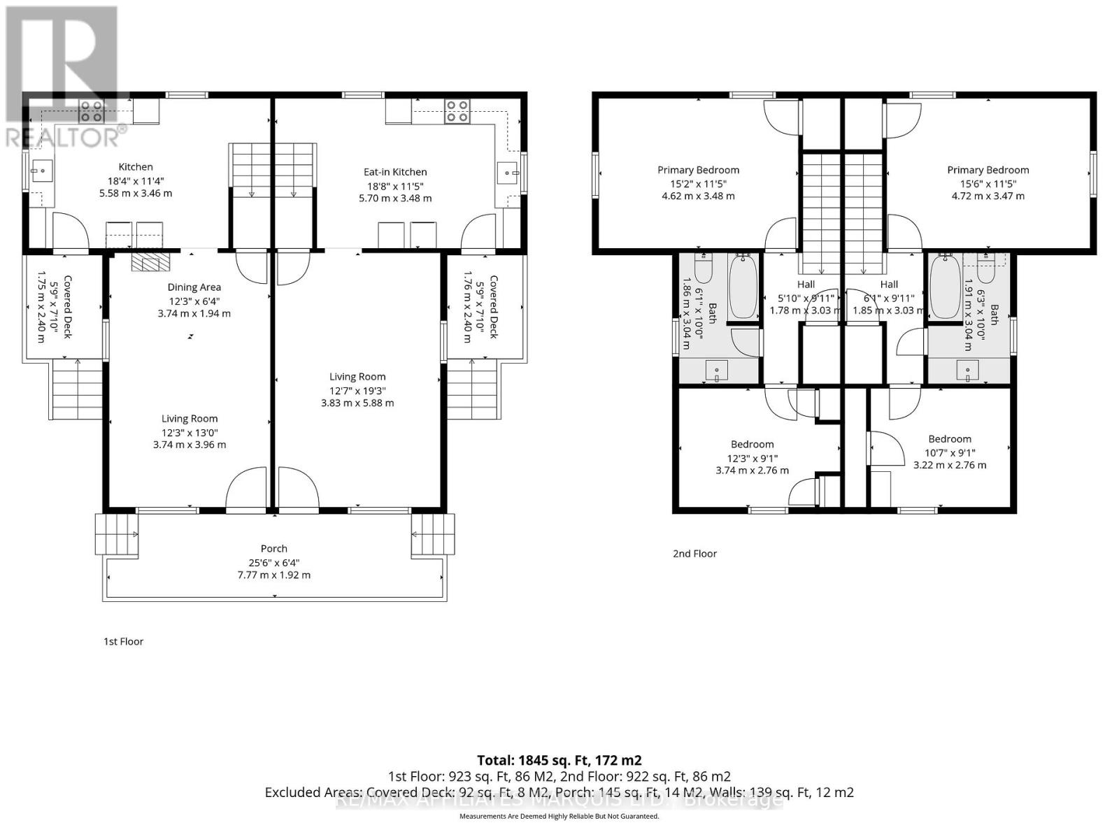
4 Bedroom 2 Bathroom 2,000 - 2,500 sqft
None Baseboard Heaters

$299,900

24 hour irrevocable on all offers.Rare investment opportunity! This well-maintained duplex has been under the same ownership and offers two fully tenanted units with reliable income and great tenants already in place.Unit 66 features 2 bedrooms and 1 bathroom, currently rented for $1,400/month, with access to the garage and backyard. Unit 44 also offers 2 bedrooms and 1 bathroom, rented for $816.80/month. Both tenants pay their own utilities, making this a strong, low-maintenance addition to any portfolio.Generating an annual gross income of $26,601.60, this property is an excellent option for investors seeking steady cash flow.Each unit enjoys its own private driveway, providing convenience and privacy for tenants. Located directly across from a park, this property offers an attractive setting that tenants appreciate.With great tenants in place and consistent rental income, this is a fantastic opportunity for investors or those looking to live in one unit while generating income from the other.24 hour irrevocable on all offers. 24 hour notice required for showings. (id:28469)

Property Details

MLS® Number X13009636
Property Type Multi-family
Community Name 717 - Cornwall
Parking Space Total 3

Building

Bathroom Total 2
Bedrooms Above Ground 4
Bedrooms Total 4
Amenities Separate Electricity Meters
Appliances Water Heater
Basement Development Unfinished
Basement Type N/a (unfinished)
Cooling Type None
Exterior Finish Vinyl Siding
Foundation Type Concrete
Heating Fuel Electric
Heating Type Baseboard Heaters
Stories Total 2
Size Interior 2,000 - 2,500 Sqft
Type Duplex
Utility Water Municipal Water

Parking

Detached Garage
Garage

Land

Acreage No
Sewer Sanitary Sewer
Size Depth 98 Ft
Size Frontage 47 Ft ,3 In
Size Irregular 47.3 X 98 Ft
Size Total Text 47.3 X 98 Ft

Contact Us

Contact us for more information

Generating Captcha

Nada Kovinich
Broker

(613) 938-8100
www.thekovinichgroup.com/

RE/MAX Affiliates Marquis Ltd.
649 Second St E
Cornwall, Ontario K6H 1Z7

(613) 938-8100
(613) 938-3295

Christa Febrile
Salesperson

(613) 551-9947

RE/MAX Affiliates Marquis Ltd.
649 Second St E
Cornwall, Ontario K6H 1Z7

(613) 938-8100
(613) 938-3295