646 Cty Rd 2 Road Front Of Leeds & Seeleys Bay, Ontario K0E 1L0
$399,900
Step back in time with this remarkable stone residence-one of the oldest in the Leeds and 1000 Islands. Full of character and timeless charm, this property offers a unique chance to restore and reimagine a true piece of local history. Home features high ceilings that enhance the sense of openness and a large addition providing extra living space and flexibility. For convenience and storage there's also an attached 2 car garage. Perfectly situated in a convenient location yet offering privacy, this home is waiting for your vision to bring it back to life. Whether you're drawn to its historic significance, it's solid stone construction, or the opportunity to Create a one-of - a - kind residence, this property is truly a rare find. Call today for your private showing. (id:28469)
Property Details
| MLS® Number | X12617006 |
| Property Type | Single Family |
| Community Name | 02 - Front of Leeds & Seeleys Bay |
| Equipment Type | Propane Tank |
| Parking Space Total | 12 |
| Rental Equipment Type | Propane Tank |
Building
| Bathroom Total | 2 |
| Bedrooms Above Ground | 3 |
| Bedrooms Total | 3 |
| Age | 100+ Years |
| Appliances | Stove, Refrigerator |
| Basement Development | Unfinished |
| Basement Type | Full (unfinished) |
| Construction Style Attachment | Detached |
| Cooling Type | None |
| Exterior Finish | Stone |
| Foundation Type | Stone |
| Half Bath Total | 1 |
| Heating Fuel | Propane |
| Heating Type | Forced Air |
| Stories Total | 2 |
| Size Interior | 2,500 - 3,000 Ft2 |
| Type | House |
Parking
| Attached Garage | |
| Garage |
Land
| Acreage | Yes |
| Sewer | Septic System |
| Size Depth | 397 Ft |
| Size Frontage | 194 Ft |
| Size Irregular | 194 X 397 Ft |
| Size Total Text | 194 X 397 Ft|2 - 4.99 Acres |
| Zoning Description | Rural Residential |
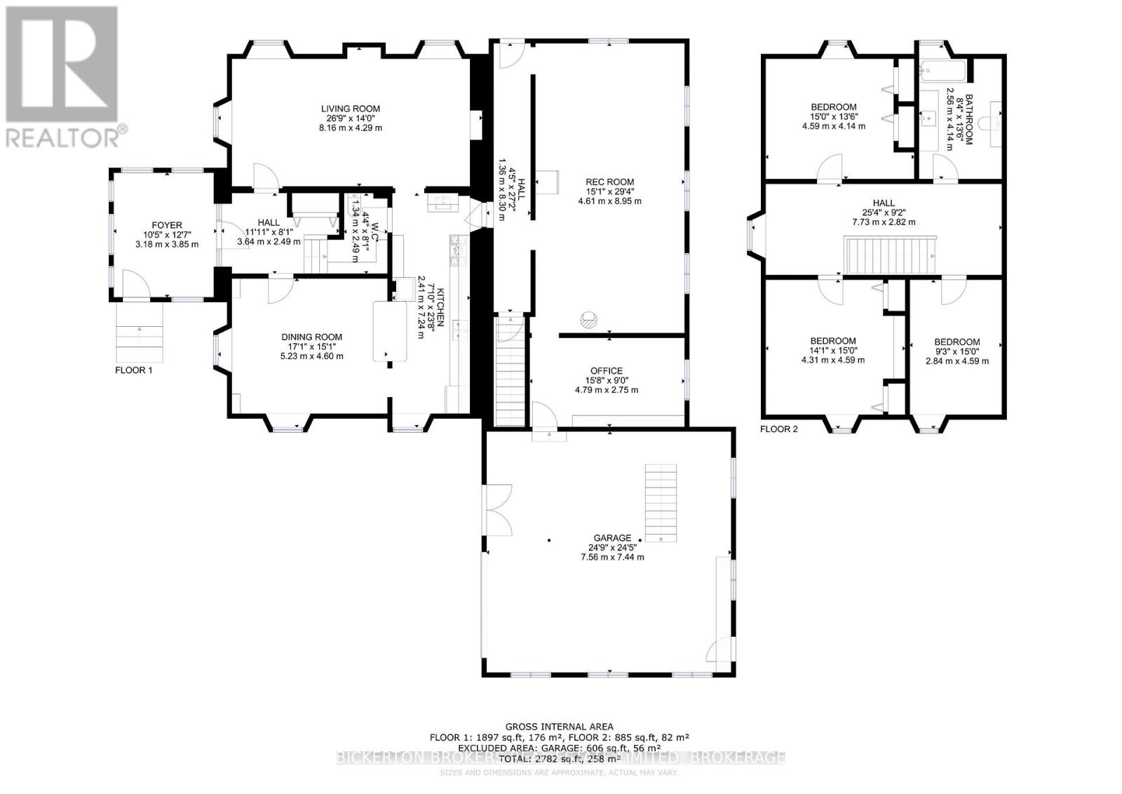
Rooms
| Level | Type | Length | Width | Dimensions |
|---|---|---|---|---|
| Second Level | Bathroom | 4.14 m | 2.56 m | 4.14 m x 2.56 m |
| Second Level | Bedroom | 4.59 m | 4.14 m | 4.59 m x 4.14 m |
| Second Level | Bedroom 2 | 4.59 m | 4.31 m | 4.59 m x 4.31 m |
| Second Level | Bedroom 3 | 2.84 m | 4.59 m | 2.84 m x 4.59 m |
| Main Level | Living Room | 8.16 m | 4.29 m | 8.16 m x 4.29 m |
| Main Level | Dining Room | 5.23 m | 4.6 m | 5.23 m x 4.6 m |
| Main Level | Kitchen | 7.24 m | 2.41 m | 7.24 m x 2.41 m |
| Main Level | Foyer | 3.1 m | 3.85 m | 3.1 m x 3.85 m |
| Main Level | Bathroom | 1.34 m | 2.49 m | 1.34 m x 2.49 m |
| Main Level | Family Room | 8.95 m | 4.61 m | 8.95 m x 4.61 m |
| Main Level | Other | 4.79 m | 2.75 m | 4.79 m x 2.75 m |










































