714 Tailslide Private Ottawa, Ontario K0A 1L0

3 Bedroom 3 Bathroom 1,500 - 2,000 sqft
None, Air Exchanger Forced Air

$599,900

Maintenance, Parcel of Tied Land

$82.77 Monthly

NEW MODEL HOME available for viewing! SEASONAL SPECIAL: $10,000 DESIGN CENTRE BONUS & SMOOTH CEILINGS Included for a limited time! Executive town radiating curb appeal & exquisite design, on an extra deep lot. Their high-end, standard features set them apart. Exterior: Genuine wood siding on front exterior w/ metal roof accent, wood inspired garage door, arched entryway, 10' x 8' deck off rear + eavesthroughing! Inside: Finished recroom incl. in price along w/ 9' ceilings & high-end textured vinyl floors on main, designer kitchen w/ huge centre island, extended height cabinetry, backsplash & quartz counters, pot lights & soft-close cabinetry throughout! The 2nd floor laundry adds convenience, while the large primary walk-in closet delights. Rare community amenities incl. walking trails, 1st class community center w/ sport courts (pickleball & basketball), playground, covered picnic area & washrooms! Lower property taxes & water bills make this locale even more appealing. Experience community, comfort & rural charm mere minutes from the quaint village of Carp & HWY for easy access to Ottawa's urban areas. Whether for yourself or as an investment, Sheldon Creek Homes in Diamondview Estates offers a truly exceptional opportunity! Don't miss out - Sheldon Creek Homes, the newest addition to Diamondview Estates! With 20 years of residential experience in Orangeville, ON, their presence in Carp marks an exciting new chapter of modern living in rural Ottawa. WOW - AMAZING VALUE! Act Now! (id:28469)

Property Details

MLS® Number X12993122
Property Type Single Family
Community Name 9104 - Huntley Ward (South East)
Amenities Near By Park
Community Features Community Centre
Equipment Type Water Heater - Tankless
Features Lane
Parking Space Total 3
Rental Equipment Type Water Heater - Tankless
Structure Deck

Building

Bathroom Total 3
Bedrooms Above Ground 3
Bedrooms Total 3
Age New Building
Appliances Hood Fan
Basement Development Partially Finished
Basement Type N/a (partially Finished)
Construction Style Attachment Attached
Cooling Type None, Air Exchanger
Exterior Finish Brick
Foundation Type Concrete
Half Bath Total 1
Heating Fuel Natural Gas
Heating Type Forced Air
Stories Total 2
Size Interior 1,500 - 2,000 Sqft
Type Row / Townhouse
Utility Water Municipal Water

Parking

Attached Garage
Garage

Land

Acreage No
Land Amenities Park
Size Depth 114 Ft ,10 In
Size Frontage 21 Ft
Size Irregular 21 X 114.9 Ft ; 0
Size Total Text 21 X 114.9 Ft ; 0
Zoning Description T1 (357r)

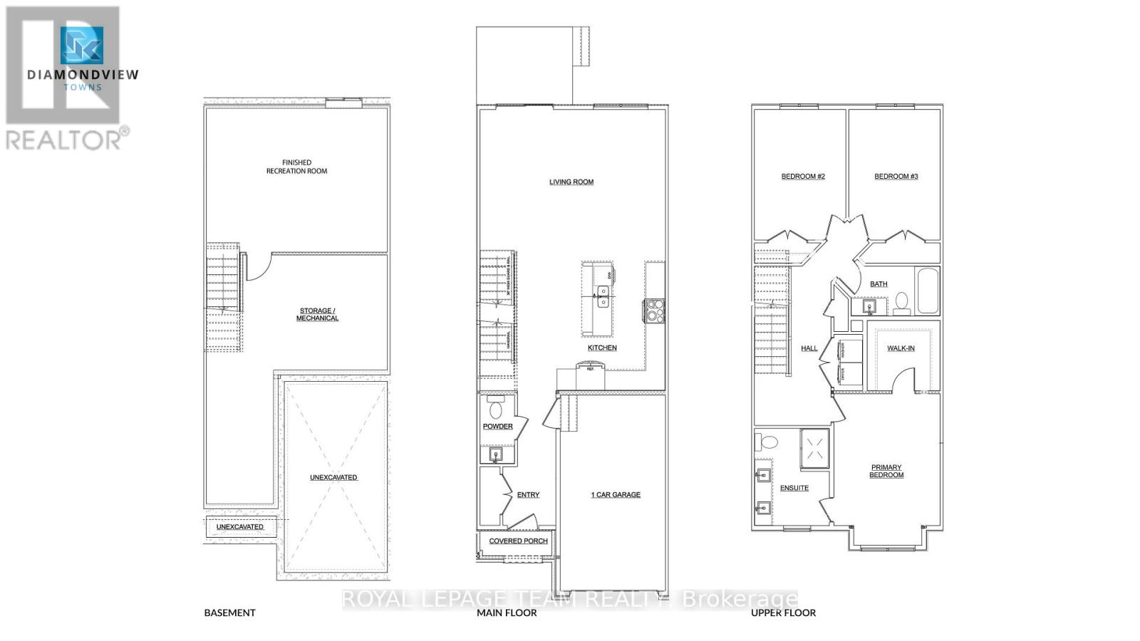
Rooms

Level Type Dimensions
Second Level Laundry Room Measurements not available
Second Level Primary Bedroom 4.08 m x 3.35 m
Second Level Bathroom 3.02 m x 2.38 m
Second Level Bedroom 2 4.03 m x 2.92 m
Second Level Bedroom 3 4.03 m x 2.89 m
Second Level Bathroom 2.81 m x 1.54 m
Lower Level Recreational, Games Room 5.86 m x 4.72 m
Lower Level Utility Room Measurements not available
Main Level Foyer Measurements not available
Main Level Living Room 5.91 m x 4.36 m
Main Level Kitchen 4.79 m x 4.36 m
Main Level Bathroom Measurements not available

Utilities

Cable Available
Electricity Installed
Natural Gas Available Available

Schedule a Tour

Contact Us

Contact us for more information

Generating Captcha

Jen Macdonald
Salesperson

(613) 804-7653
www.macdonaldwebster.ca/

Royal LePage Team Realty
484 Hazeldean Road, Unit #1
Ottawa, Ontario K2L 1V4

(613) 592-6400
(613) 592-4945
www.teamrealty.ca/

Lucy Webster
Salesperson

(613) 884-2809
www.macdonaldwebster.ca/

Royal LePage Team Realty
484 Hazeldean Road, Unit #1
Ottawa, Ontario K2L 1V4

(613) 592-6400
(613) 592-4945
www.teamrealty.ca/